
ВНИМАНИЕ!!!
МЫ ДЕМОНСТРИРУЕМ ТЕПЛОТУ ВАШЕГО ДОМА!!!
Тепловизионный отчет для Вашего спокойствия по окончании
строительства. В наших домах тепло в суровую зиму и прохладно в летний зной.
Благодаря использованию наших технологий, строительству по СНиП и ГОСТ вам не придется переплачивать за
отопление – накопленное тепло остается в доме, теплопотери практически отсутствуют, все конструкции сохраняют
свои свойства долгое время.
Срок службы наших домов – БОЛЕЕ 100 лет!!! А сроки строительства не превышают четырех месяцев!!!
Не знаете с чего начать? Мы поможем Вам «расставить все по полочкам».
ИТАК, НАЧИНАЕМ:
- Выбираем проект и подтачиваем его под Вас. Берем Ваши желания, учитываем наши рекомендации.
Согласовываем планировки, фасады, материалы. УЧТИТЕ! Мы не успокоимся, пока вы не скажете: «ЭТО ТО, ЧТО
НУЖНО!!!».
- Проводим геологическое обследование грунтов для правильного выбора фундамента.
- Не теряя времени проговариваем где и как получить разрешение на строительство, тех.условия на
коммуникации и согласования.
- Заключаем договор, приступаем к строительству. Обязательное приложение к договору – смета, календарный
график выполнения работ, график финансирования.
- На этапе выполнения фундаментных работ заводим в дом водопровод и канализацию, ближе к завершению кровли
– газ и электричество .
- Дом под крышей уже через 2,5-3 месяца! Не теряем времени и приступаем к монтажу электропроводки,
отопления, водопровода и канализации. Все это необходимо выполнить до начала отделочных работ, ведь все
коммуникации прокладываются скрыто и вы не увидите нигде никаких труб, кабель-каналов или нелепых коробов из
ГКЛ.
- ОТДЕЛКА! Определяемся с видами покрытий полов, стен, потолков. Хотите дизайн и подбор материалов? Мы к
Вашим услугам!
- Наконец то! Запах шпаклевки и свежей краски! Возрастающее ощущение законченности. Добавляем
окончательные штрихи к интерьерам - выбираем сантехнику, светильники, двери. Не забудьте подобрать мебель
заранее – ведь новоселье совсем скоро!!!
- Остались вопросы? ЗВОНИТЕ не раздумывая ПРЯМО СЕЙЧАС! Или оставьте заявку здесь: мы сами перезвоним Вам!
Цена дома включает в себя: фундамент, стены (облицовочный кирпич + поризованные керамические блоки + утеплитель), ж/б перекрытия, утепленное чердачное перекрытие, система вентиляции, кровля (металлочерепица), ПВХ окна, входные металлические двери и гаражные ворота
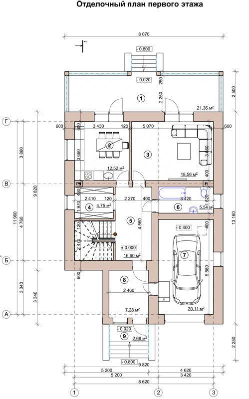
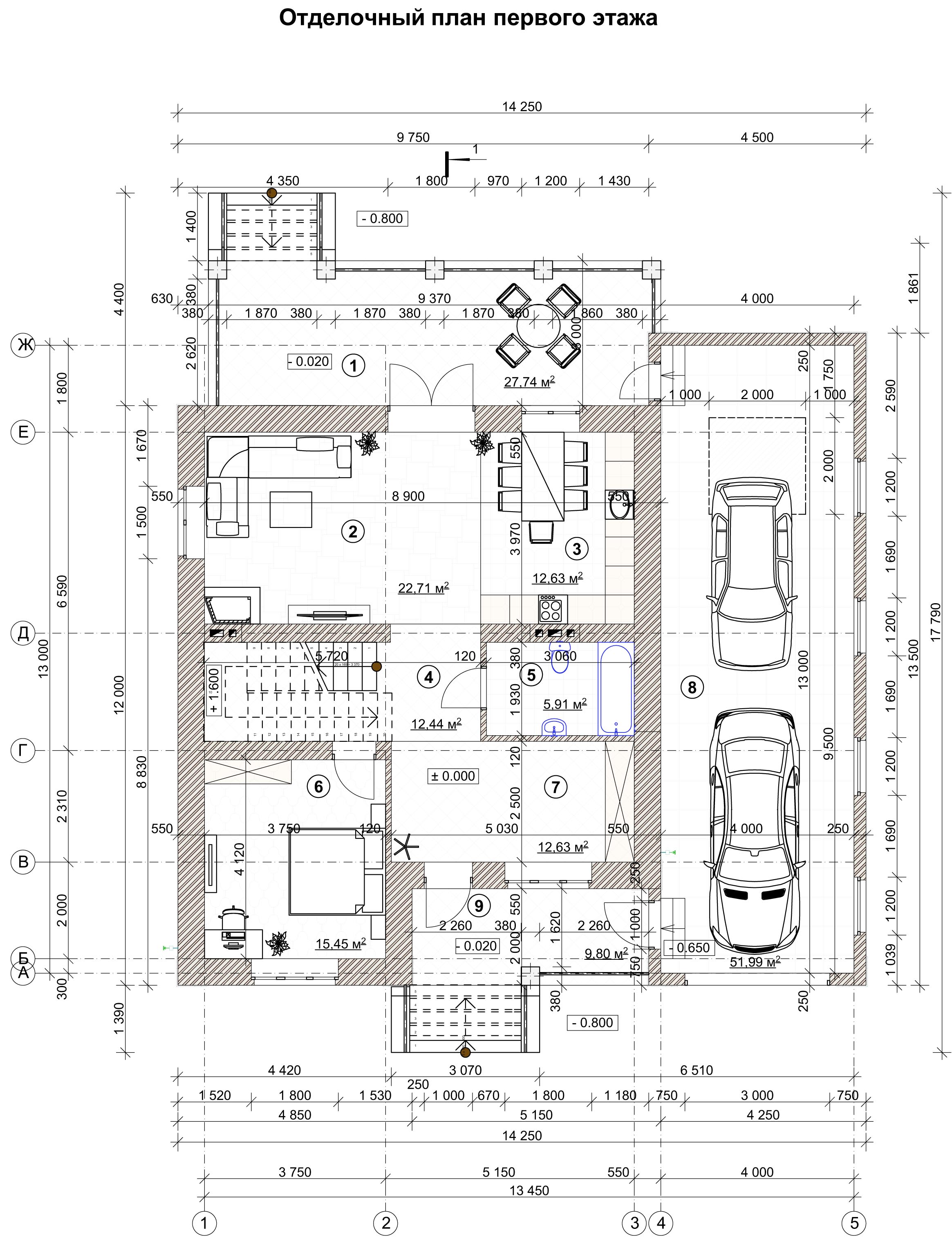
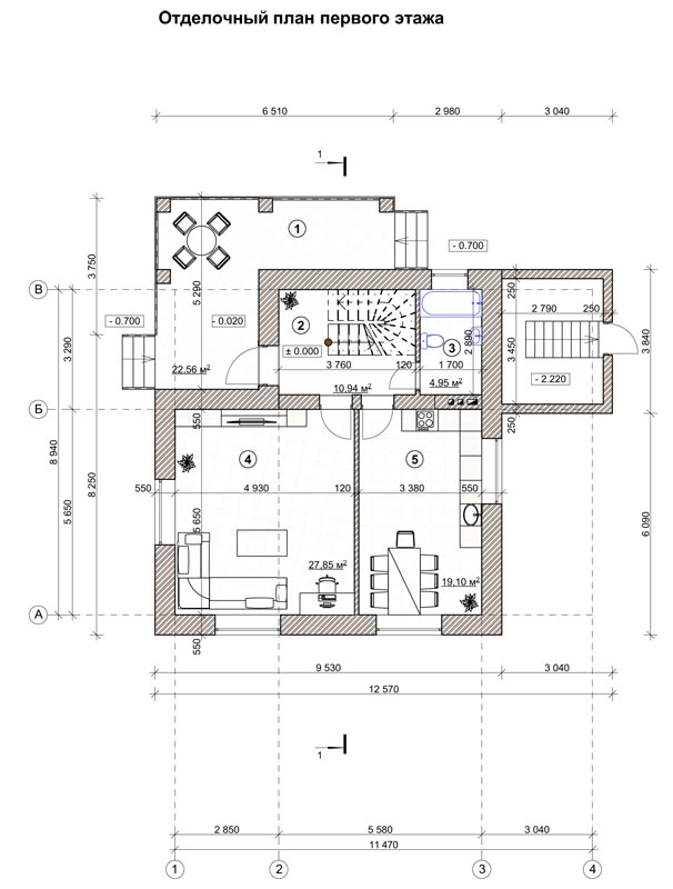
Одноэтажный жилой дом. Проект 1
Площадь: 198,84 кв/м
Цена 4 175 000 руб
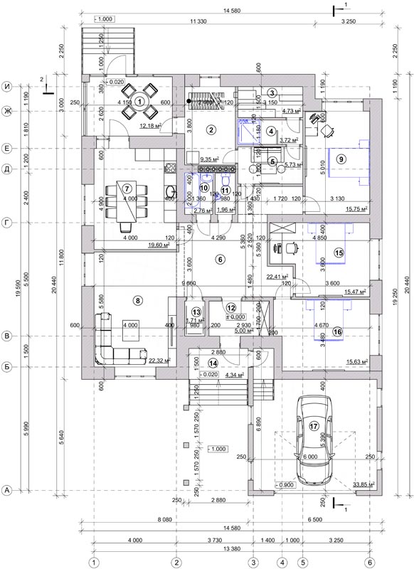
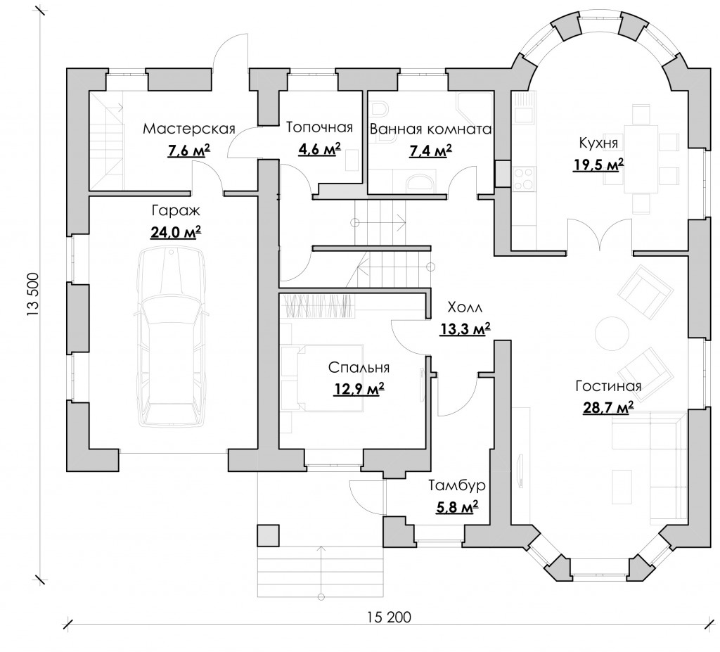
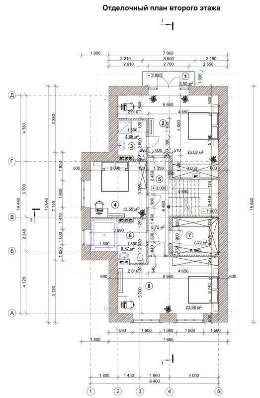
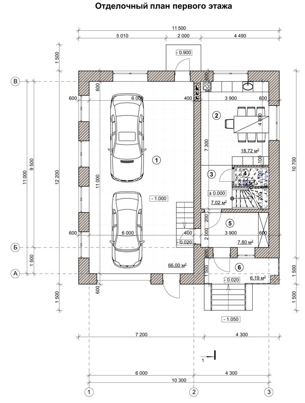
Двухэтажный жилой дом. Проект 2
Площадь: 143.6 кв/м
Цена 3 015 000 руб
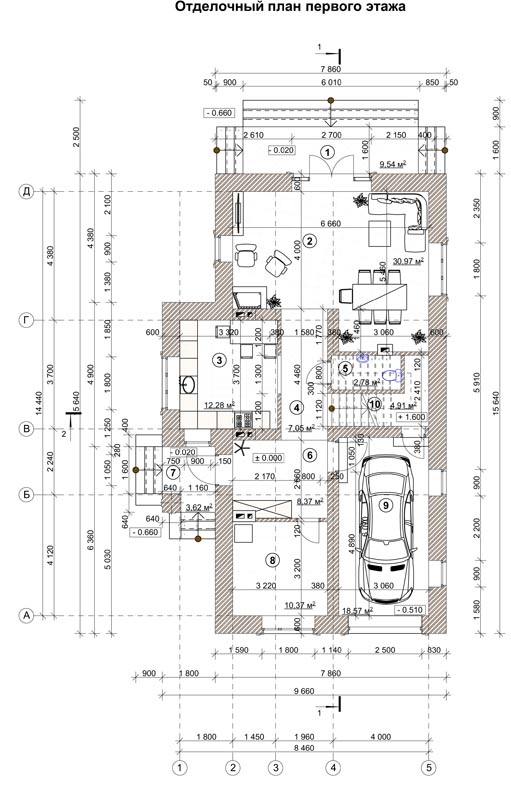
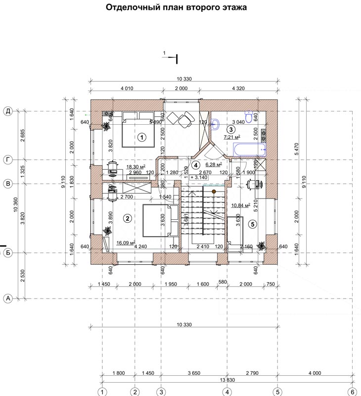
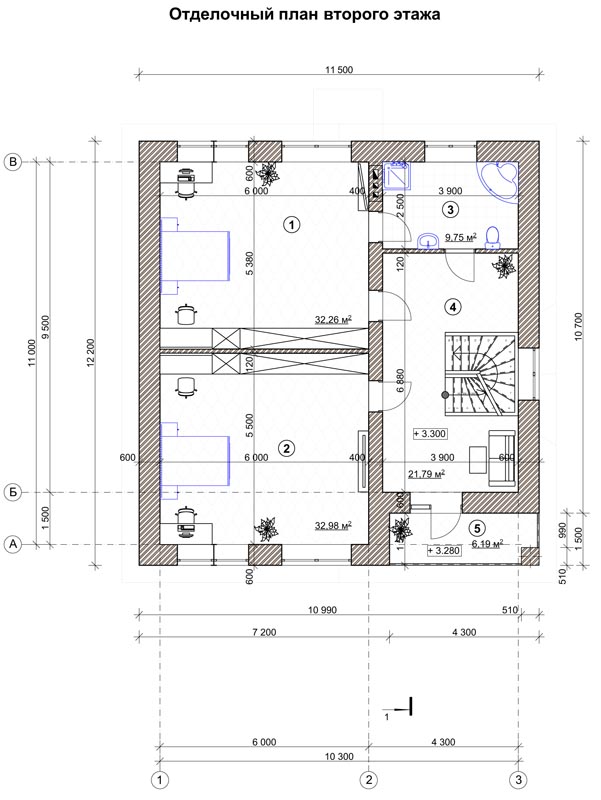
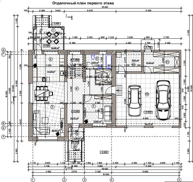
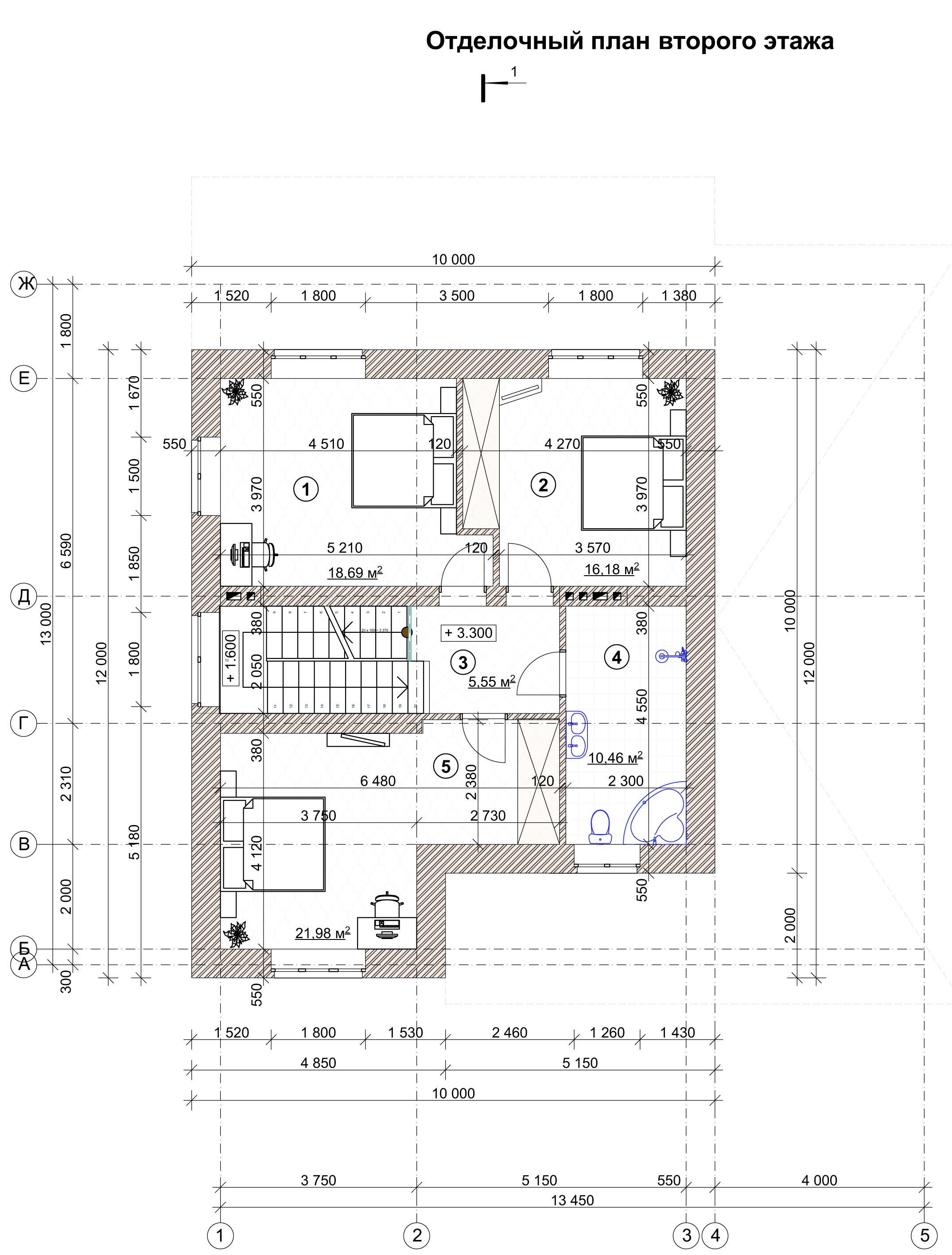
Двухэтажный жилой дом. Проект 3
Площадь: 192,85 кв/м
Цена 4 049 000 руб
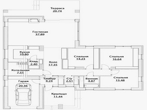
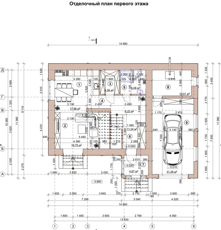
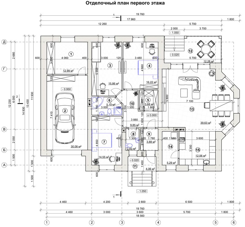
Одноэтажный жилой дом. Проект 4
Площадь: 188,36 кв/м
Цена 3 855 000 руб
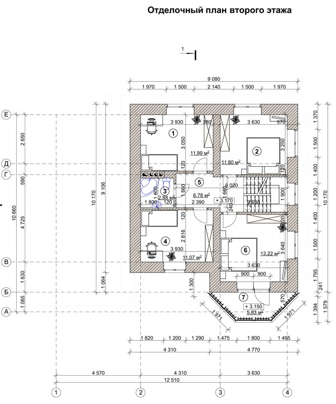
Двухэтажный жилой дом. Проект 5
Площадь: 208 кв/м
Цена 5 420 000 руб
Двухэтажный жилой дом. Проект 6
Площадь: 272,19 кв/м
Цена 4 428 000 руб
Двухэтажный жилой дом. Проект 7
Площадь: 348.34 кв/м
Цена 6 790 000 руб
Двухэтажный жилой дом. Проект 8
Площадь: 244.16 кв/м
Цена 5 100 000 руб
Двухэтажный жилой дом. Проект 9
Площадь: 205,31 кв/м
Цена 4 231 000 руб
Одноэтажный жилой дом. Проект 10
Площадь: 174,27 кв/м
Цена 3 650 000 руб
Двухэтажный жилой дом. Проект 11
Площадь: 172,21 кв/м
Цена 3 615 000 руб
Двухэтажный жилой дом. Проект 12
Площадь: 205,37 кв/м
Цена 4 210 000 руб
Одноэтажный жилой дом. Проект 13
Площадь: 100 кв/м
Цена 2 301 051 руб
Цена: 2 091 864 руб
Одноэтажный жилой дом. Проект 14
Площадь: 112.2 кв/м
Цена 2 363 281 руб
Цена: 2 148 437 руб
Одноэтажный жилой дом. Проект 15
Площадь: 155 кв/м
Цена 3 443 920 руб
Цена: 3 130 836 руб
Одноэтажный жилой дом. Проект 16
Площадь: 140 кв/м
Цена 3 800 000 руб
Цена: 3 102 000 руб
Двухэтажный жилой дом. Проект 17
Площадь: 106.5 кв/м
Цена: 2 800 422 руб
Цена 2 350 000 руб
Двухэтажный жилой дом. Проект 18
Площадь: 114.3 кв/м
Цена: 2 421 143 руб
Цена 2 201 039 руб
Двухэтажный жилой дом. Проект 19
Площадь: 131 кв/м
Цена: 2 631 714 руб
Цена 2 392 467 руб
Двухэтажный жилой дом. Проект 20
Площадь: 134.4 кв/м
Цена: 2 801 636 руб
Цена 2 714 000 руб
Двухэтажный жилой дом. Проект 21
Площадь: 168 кв/м
Цена: 3 600 000 руб
Цена 3 240 000 руб
Двухэтажный жилой дом. Проект 22
Площадь: 162 кв/м
Цена: 3 700 140 руб
Цена 3 402 000 руб
Двухэтажный жилой дом. Проект 23
Площадь: 207 кв/м
Цена: 3 591 652 руб
Цена 3 507 000 руб
Двухэтажный жилой дом. Проект 24
Площадь: 177 кв/м
Цена: 3 650 000 руб
Цена 3 549 000 руб
Двухэтажный жилой дом. Проект 25
Площадь: 178.2 кв/м
Цена: 3 520 000руб
Цена 3 360 000 руб
Двухэтажный жилой дом. Проект 26
Площадь: 249 кв/м
Цена: 6 100 000 руб
Цена 5 231 000 руб
Двухэтажный жилой дом. Проект 27
Площадь: 206 кв/м
Цена: 4 725 425 руб
Цена 4 326 000 руб
Двухэтажный жилой дом. Проект 28
Площадь: 214.5 кв/м
Цена: 4 717 540 руб
Цена 4 515 000 руб
Двухэтажный жилой дом. Проект 29
Площадь: 158 кв/м
Цена: 4 079 642 руб
Цена 3 708 765 руб
Двухэтажный жилой дом. Проект 30
Площадь: 170 кв/м
Цена: 3 642 052 руб
Цена 3 570 000 руб
Двухэтажный жилой дом. Проект 31
Площадь: 115 кв/м
Цена: 2 828 800 руб
Цена 2 587 000 руб
Двухэтажный жилой дом. Проект 32
Площадь: 175 кв/м
Цена: 3 918 500 руб
Цена 3 675 000 руб
Двухэтажный жилой дом. Проект 33
Площадь: 340.5 кв/м
Цена: 6 918 580 руб
Цена 6 870 000 руб
Цена дома включает в себя: фундамент, стены (облицовочный кирпич + поризованные керамические блоки + утеплитель), ж/б перекрытия, утепленное чердачное перекрытие, система вентиляции, кровля (металлочерепица), ПВХ окна, входные металлические двери и гаражные ворота
Технологии, с которыми мы работаем
Технадзор от Домакс
ТЕХНАДЗОР ОТ ДОМАКС НА СТОРОННИХ ОБЪЕКТАХ
- Нанятые Вами строители вызывают беспокойство?
- Вы сомневаетесь в качестве Вашего будущего дома?
- У Вас не хватает времени и нервов для выполнения Вами функции «прораба»?
- Вы устали объяснять как Вам нужно, и как правильно?
- Часами сидите на строительных форумах в интернете, где собрались такие же «специалисты»?
- Консультируетесь со знакомыми, которые сами через это прошли?
- Сроки строительства затягиваются а стоимость возрастает?
- Вам пытаются продать дешевые некачественные материалы по дорогой цене?
ВЫХОД ЕСТЬ! Мы избавим Вас от этой головной боли!
С услугой «Технадзор» от Домакс Вы получаете:
- Дополнительный контроль на объекте строительства
- Уверенность в правильности процесса строительства
- Информацию как можно сэкономить не в ущерб качеству, а на что обратить особое внимание
- Консультации и разъяснения по выбранным технологиям и материалам
- Право пользоваться нашими скидками у поставщиков строительных материалов
- Гарантию приобретения только качественных и проверенных материалов
- Мы поможем разобраться с оформлением проектно-разрешительной документации, проведем проверку смет на предмет завышения цены, обследуем объект строительства с выдачей заключения.
- Для проверки тепловой эффективности дома по окончании строительства проводится тепловизионное обследование на предмет возможных теплопотерь.
- При необходимости силами нашей организации возможно завершение начатых работ на любом этапе (фундамент, стены, кровля, коммуникации, отделка)
- КОНСУЛЬТАЦИИ БЕЗ ВЫЕЗДА НА ОБЪЕКТ БЕСПЛАТНЫ!!! ЗВОНИТЕ ПРЯМО СЕЙЧАС 8 (8362) 77-12-70!!!
Наши лицензии
Где мы находимся